Lichtdurchflutetes Einfamilienhaus mit märchenhaftem Garten
Grundstücksfläche: 716 m²
Wohnfläche: 137 m²
Zimmer: 4
Baujahr: 2003
🗓️ Bezugsfrei: 2026
Ausstattung
PV‑Anlage: 11 KWp (MeyerBurge & Fronius)
🔋 Speicher: 11 KWh (BYD HVM) Wallbox: 11 KW (Fronius)
Klimaanlage: Multi-Split (Mitsubishi)
Küche: Einbauküche (Nolte)
Bodenbeläge: Fliesen, Parkett, Laminat
Heizungsart: Zentralheizung (Nahwärme)
Wesentlicher Energieträger: Nahwärme, Holz
Keller: Voll unterkellert
Energieeffizienzklasse: (In Arbeit)
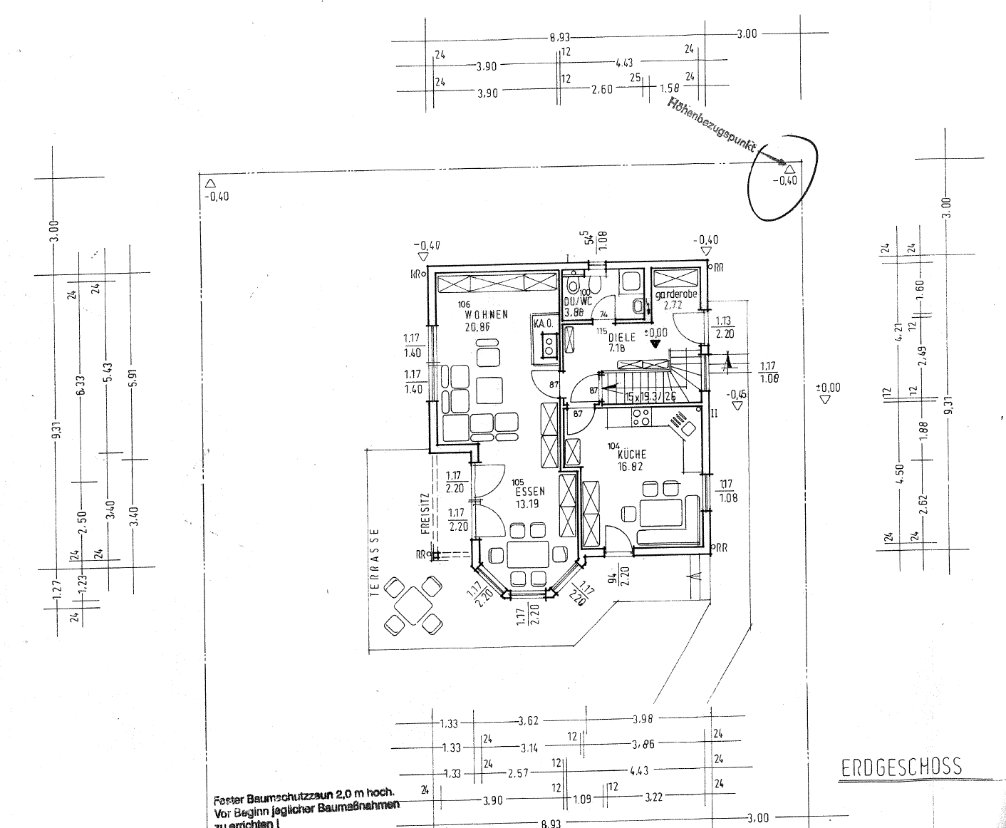
Erdgeschoss
Der großzügige, helle Wohnbereich mit einem schönen Erker und großen Fensterflächen lässt einen direkt in den Garten blicken und bietet Zugang zur Terrasse. Ein Schwedenofen sorgt für eine kuschelige und gemütliche Atmosphäre. Im Sommer sorgt die Klimaanlage für angenehme Temperaturen in Wohn- und Schlafzimmer.
Die Küche ist mit einer qualitativ hochwertigen Nolte-Holzeinbauküche, sämtlichen Elektrogeräten und einer eleganten Granit-Arbeitsplatte ausgestattet. Der angrenzende Essbereich lädt zu geselligen Abenden ein und bietet ebenfalls Zugang in den Garten. Ein modernes Duschbad mit WC rundet das Erdgeschoss ab. Alle Rollläden im Erdgeschoss sind elektrisch.
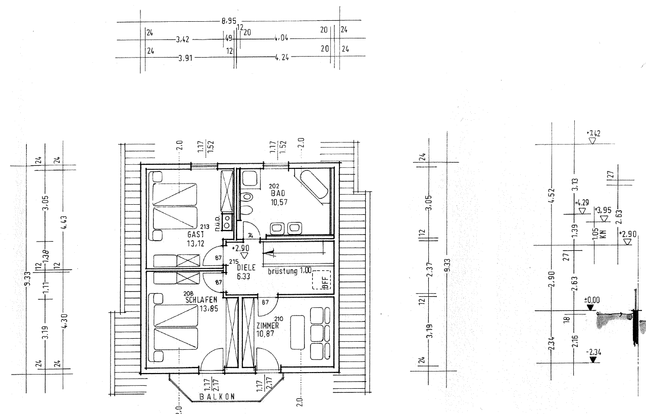
Dachgeschoss
Im Obergeschoss erwarten Sie drei helle und freundlich gestaltete Zimmer, ideal nutzbar als Schlaf-, Kinder- oder Arbeitszimmer. Das großzügige Schlafzimmer sowie ein weiteres Zimmer verfügen über einen direkten Zugang zum Balkon. Alle Räume im Dachgeschoss sind mit Laminat ausgestattet.
Das stilvolle Tageslichtbad bietet viel Komfort: Eckbadewanne, Doppelwaschbecken, WC, Bidet sowie eine separate Dusche – alles in zeitlos hellen Fliesen gehalten.
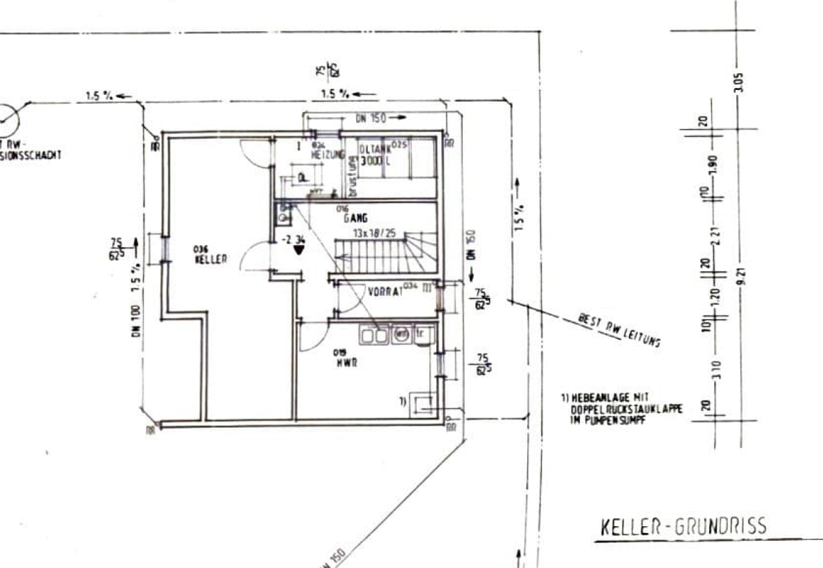
Kellergeschoss
Der hochwertige, vollständig geflieste Keller bietet praktische Räume wie Vorratskeller, Waschraum und Heizungsraum.
Außenbereich
Das 716 m² große, real geteilte Grundstück ist ein echter Familientraum. Der Garten ist liebevoll angelegt, eingewachsen und bietet viel Privatsphäre. Eine prächtige Linde sorgt für Kühle im Sommer und zeigt die Jahreszeiten in ihren schönsten Farben. Die riesige Vielfalt an Pflanzen lockt zahlreiche Schmetterlinge und Vögel in den Garten und für Kinder gibt es immer etwas zu entdecken. Ein Gartenhaus ist ebenfalls vorhanden und die Terrasse ist mit Natursteinpflaster gestaltet. Zum Haus gehört außerdem eine Doppelgarage mit elektrischem Tor und Wallbox. Über der Garage befindet sich weitere Abstellfläche.
Kontaktaufnahme:
info@immobilie-adelshofen.de
Bitte mit Ihren Namen und Telefonnummer für einen Rückruf.
📑 Dokumente
Die genaue Adresse teilen wir Ihnen gerne umgehend mit, nach der Kontaktaufnahme per E-Mail. Die Immobilie befindet sich in der Gemeinde Adelshofen.







